那須限定の格安ログハウス!分譲地、リゾート物件、別荘の販売情報は那須ログハウス.NET

ログハウス販売、分譲地、リゾート物件紹介、那須ログハウス.NET
那須ログハウス,格安,販売,価格,分譲地,別荘 お問い合わせフォーム tel.0287-78-6125


ログハウス用木材の輸入状況によってキャンペーン時期が早まったり遅れたりしますので、ぜひメールマガジン登録を!!

 メールマガジン登録
 メールマガジン解除
 


那須高原限定仕様のログハウスプラン。憧れの別荘オーナーになるチャンス!お好みのタイプをお選びください!


那須高原特有の気候に合わせたプランです。当社オリジナルのこだわりと工夫がここにあります。


那須高原平和郷の分譲地をご紹介。別荘地、リゾート物件をお探しの方はぜひご覧ください。


カナダより良質のログ材を直輸入。中間マージンの徹底的なカットにより、ログハウスをお求めやすい価格で実現。


ログハウスの過去販売の実績。リクエストが多数になった場合、過去のプランの再販も検討していきます!


ログハウスのキット販売も行っております。当社の流通システムならではの価格を実現しております。

ログハウスの材料と一緒に輸入家具やアウトドア用品も取り寄せています。ログハウスとぴったりマッチ。
愛犬だって愛車だって気持ちよい木の家に住みたい!ということでログ材で犬小屋とガレージをご用意しました。


那須ログハウス.NETを運営しているスタジオモナンデおよび、協力会社のプロフィール。


那須ログハウス.NETサイト運営にあたってのプライバシポリシー。


那須ログハウス.NETのお役立ちリンク集。相互リンクも募集中!

SEO対策にオートリンクネット リンクが自動で増殖オートリンクの登録はこちら ネットでポチポチ¥
アクセスアップ裏技大全
ワイン大好きワインネット










限定5棟

ログハウス18坪タイプ
標準お引き渡し価格1250万円(税込)

那須高原限定プラン!

那須高原限定プランとして、ログハウスの18坪タイプが格安でお求めいただけます!
大自然の中で思いっきりリゾートライフを満喫!憧れの別荘オーナーになるチャンスです!

※イメージ写真です。



※イメージにつき実際と異なる場合があります。
※図中の家具類は価格に含まれません。
週末の別荘に最適!
コンパクトなログハウス18坪タイプ

寒冷地仕様をさらに強化!
当社従来仕様比1.2倍のログ厚を確保。140×177から167×197へ。形状は角型と上図のD型2種類から選択可能!コンピュータ制御によるマシンカット2本実加工によってログハウスの欠点である隙間風を大幅低減。太いログ材による断熱性の向上で那須平和郷内における快適な住空間を四季を通して形成します。

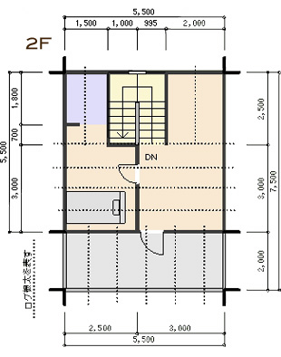
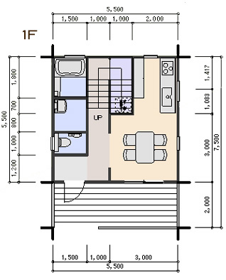
1F 30.25平米
9.15坪
テラス 11.00平米
3.32坪
2F 30.25平米
9.15坪
ベランダ 11.00平米
3.32坪


スタジオモナンデよりみなさまへ
スタジオモナンデでは、素敵なリゾートライフのお役に立てるように、ログハウスをはじめ、ログハウスにぴったり合う家具や小物犬小屋やガレージキットなど様々なアイテムをご用意しております。そしてそれらはカナダの工場より直輸入していますので、リーズナブルな価格を実現しています。ぜひお気軽にご連絡ください!

ログハウス・別荘地探しに関するお問い合わせはお気軽に





那須ログハウス.NET運営会社 プライバシーポリシー お問い合わせフォーム リンク集


Copyright©2006 Studio Monande All rights reserved. produced by sole color design.